MIWA 【美和ロック】鎌デッドプッシュプル錠 [MIWA-PLVF777] PRPLVF777DV-1型 並行移動型 [PRPLVF777DV-1]

MIWA 【美和ロック】鎌デッドプッシュプル錠 [MIWA-PLVF777] PRPLVF777DV-1型 並行移動型 [PRPLVF777DV-1]

▲お急ぎの場合は納期をメールまたはお問い合わせからご確認ください。
お届け日:決済確定後 ■店頭に在庫がある場合、営業日翌日発送
●店頭になく取り寄せで着る場合は営業日3〜4日発送
◆標準納期品、受注品生産品は納期予定日を別途メールにてお知らせ(標準納期、受注生産商品はオーダー制作のためキャンセル、返品ができないためご注意ください。)
送料:購入金額合計が30,000円(税抜)以上で送料無料 返品について:初期不良の場合のみ、お受け致します。商品到着後1週間以内にご連絡ください。

販売価格: 49,450(税込)

オプションにより価格が変わる場合もあります。

お急ぎの場合はご連絡下さい。
シリンダー選択:
:
扉厚:
バックセット:
左右勝手:
PRスペアキー制作 JNを選んだ場合のみ選択できます。
PRスペアキー (任意):
JNスペアキー制作 JNを選んだ場合のみ選択できます。
JNスペアキー (任意):

販売価格: 49,450(税込)

数量:

商品詳細

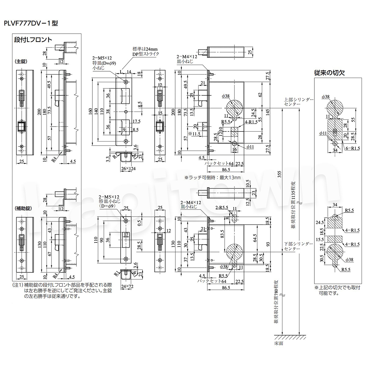
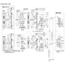
扉の開きと左右勝手片開き、右勝手
片開き、左勝手
両開き、右勝手
両開き、左勝手
戸厚   36mm以上〜40mm未満
40mm以上〜44mm未満
44mm以上〜45mm以下

・両開き用をご選択のお客様は備考欄に正確な戸厚をご記載お願いいたします。

・バックセットサイズとは扉縁からハンドル台座センターまでのサイズになります。

・左右勝手の確認方法は扉を開く方から見て吊元(丁番)が左にある場合は左勝手になります。上のメイン写真は左勝手になります。